2026.02.27
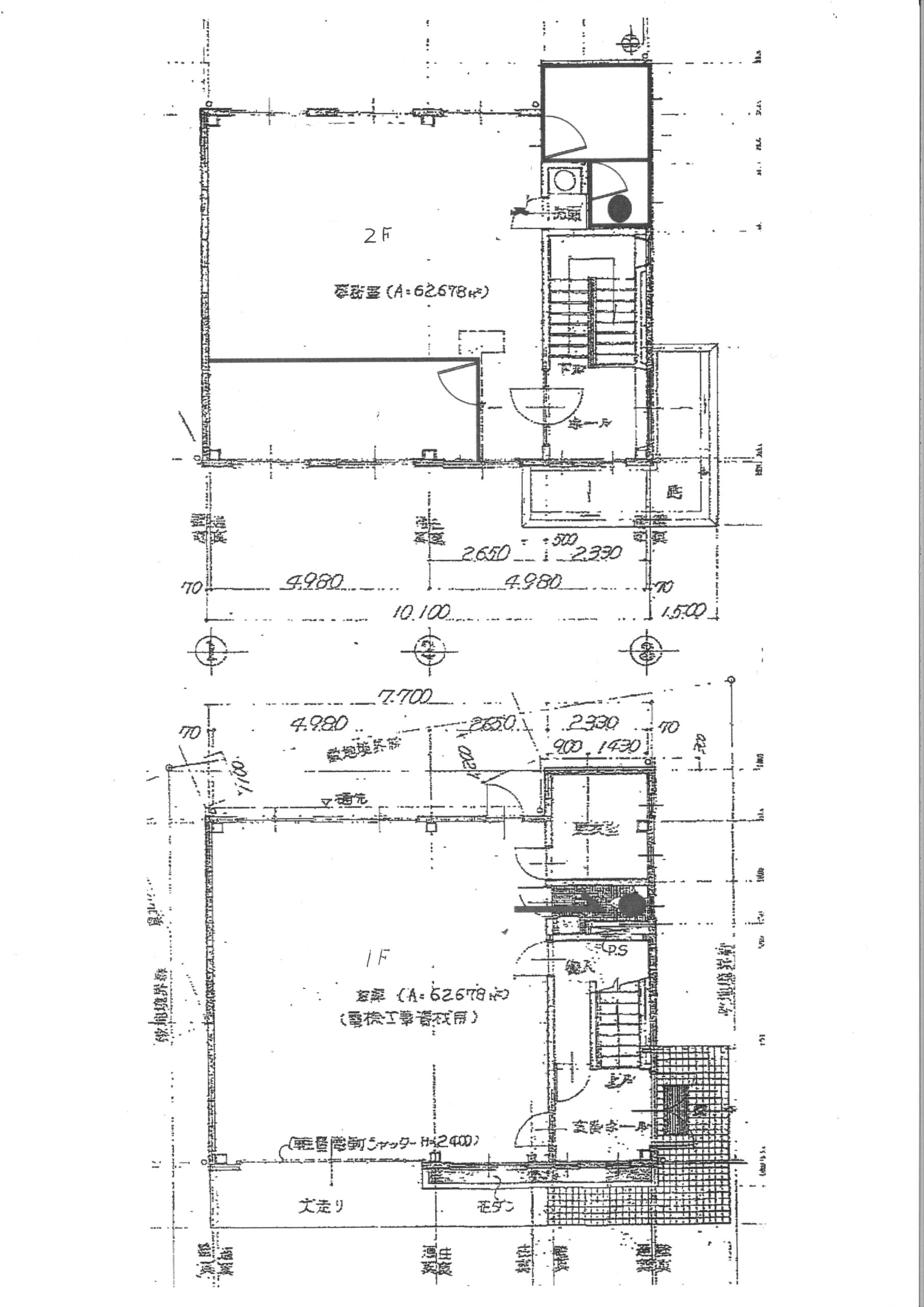
加古川市平岡町二俣753番9 1階倉庫(シャッター付きH2.4m W4.1m)2階事務所
土地建物 価格31,500,000円 (土地21,472,590円 建物9,115,827円税別(税911,583円)
土地 229.99㎡(69.57坪) 建物 1階84.99㎡ 2階84.99㎡ 合計169.98㎡(51.41坪)
鉄骨造亜鉛メッキ鋼板葺2階建て 築35年 (平成2年7月)
市街化区域 第一種中高層専用地域 建蔽率60% 容積率200% 第3種高度地区 法22条 居住誘導区域A
二俣1号線 幅員約5.3m 公道
JR東加古川駅 徒歩11分 駐車スペース5台! R7年度固都税267,728円
現況有姿での引渡し(所有者契約不適合責任免責)ご案内可能!! 079-221-8588
Archive
加古川市平岡町二俣753番9 1階倉庫(シャッター付きH2.4m W4.1m)2階事務所
土地建物 価格31,500,000円 (土地21,472,590円 建物9,115,827円税別(税911,583円)
土地 229.99㎡(69.57坪) 建物 1階84.99㎡ 2階84.99㎡ 合計169.98㎡(51.41坪)
鉄骨造亜鉛メッキ鋼板葺2階建て 築35年 (平成2年7月)
市街化区域 第一種中高層専用地域 建蔽率60% 容積率200% 第3種高度地区 法22条 居住誘導区域A
二俣1号線 幅員約5.3m 公道
JR東加古川駅 徒歩11分 駐車スペース5台! R7年度固都税267,728円
現況有姿での引渡し(所有者契約不適合責任免責)ご案内可能!! 079-221-8588